
Type 75A
3
NPS 2 (DN 50) BODY NPS 2-1/2 (DN 65) BODY
8
9
10
11
2
7
14
15
6
12
1
4
19
16
5
13
17
3
30A5582-A
A0211
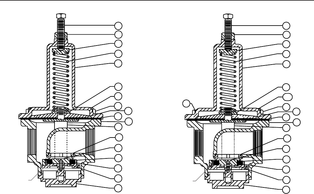
Figure 2. Type 75A Assemblies (continued)
APPLY
GASKALAC
Key Description Part Number
7 Diaphragm Nut
Steel
NPS 1/2 (DN 15) 1A941424092
NPS 3/4 (DN 20) 1E478524092
NPS 1 (DN 25) 1V361124092
NPS 1-1/2 (DN 40) 1A974824092
NPS 2 and 2-1/2 (DN 50 and 65) 1A982424092
8 Set Screw
Zinc-plated steel
NPS 1/2 (DN 15) 1C216032992
NPS 3/4 (DN 20) 1A514428992
NPS 1 and 1-1/2 (DN 25 and 40) 1F575328992
NPS 2 and 2-1/2 (DN 50 and 65) 1V360928982
9 Hex Nut
Brass
NPS 1/2 and 3/4 (DN 15 and 20) 1A518014012
NPS 1 and 1-1/2 (DN 25 and 40) 1A352414012
NPS 2 and 2-1/2 (DN 50 and 65) 1A599314012
10 Spring Seat
Steel
NPS 1/2 and 3/4 (DN 15 and 20) 1E478424092
NPS 1 (DN 25) 1V361024092
NPS 1-1/2 to 2-1/2 (DN 40 to 65) 1A975424092
11 Spring
Spring wire
NPS 1/2 (DN 15) 1V360527022
NPS 3/4 (DN 20) 1V360627142
NPS 1 (DN 25) 1V360727142
NPS 1-1/2 (DN 40) 1V360827142
NPS 2 and 2-1/2 (DN 50 and 65) 1C398227042
Key Description Part Number
12*
Diaphragm
Neoprene (CR)
NPS 1/2 (DN 15) 1A941002112
NPS 3/4 (DN 20) 1A946102112
NPS 1 (DN 25) 1A951102112
NPS 1-1/2 (DN 40) 1A974302112
NPS 2 and 2-1/2 (DN 50 and 65) 1A975502112
13* Valve Disk
Nitrile (NBR)
NPS 1/2 (DN 15) 1C158203022
NPS 3/4 (DN 20) 1C158603022
NPS 1 (DN 25) 1C158703022
NPS 1-1/2 and 2 (DN 40 and 50) 1C158903022
NPS 2-1/2 (DN 65) 1C159803022
14 Cap Screw
Zinc-plated steel
NPS 1/2 (DN 15) (6 required) 1B720924052
NPS 3/4 (DN 20) (6 required) 1A352624052
NPS 1 (DN 25) (8 required) 1A368324052
NPS 1-1/2 (DN 40) (8 required) 1A353024052
NPS 2 (DN 50) (10 required) 1A569824052
NPS 2-1/2 (DN 65) (4 required) 1A582324052
15 Hex Nut
Zinc-plated steel
NPS 1/2 (DN 15) (6 required) 1A3915X0022
NPS 3/4 (DN 20) (6 required) 1A352724122
NPS 1 and 1-1/2 (DN 25 and 40) (8 required) 1A346524122
NPS 2 (DN 50) (10 required) 1A353724122
NPS 2-1/2 (DN 65) (6 required) 1A341224122
14
8
9
10
11
2
7
15
6
12
1
4
19
16
5
13
17
3
20
APPLY
GASKALAC
30A5580-A
A0212
Figure 2. Type 75A Assemblies (continued)
*Recommended spare part.
Comments to this Manuals